チャートを出力して、測定ポイントをスケールで測定してから、測定値を入力することで調整できます。
測定値を入力するだけで表裏を調整できるので、新しい種類の用紙で両面印刷する場合や、トレイの用紙を変更した場合などで表裏の位置ズレが不明確なときに便利な調整です。
[機械状態]画面で[表裏調整]を押します。
調整したい用紙をセットしたトレイを選択します。
[オモテ]を押してから、[チャート調整]を押します。
[印刷モードへ]を押します。
操作パネルのスタートを押します。
チャートが出力されます。
[印刷モード終了]を押します。
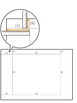
出力されたチャートの[1]~[8]の各ポイントの線の長さを測定します。
図は、[1]と[5]を測定するときの例です。
0.1 mm単位まで入力できます。
測定した長さは、忘れないようにメモしておいてください。
各ポイントの番号を押して、画面のテンキーまたは [
]、[
] で測定した長さを入力します。
数値をリセットするときは、[クリア]を押します。
[調整開始]を押します。
次に、ウラ面を調整します。
[ウラ]を押してから、[チャート調整]を押します。
[印刷モードへ]を押します。

操作パネルのスタートを押します。
チャートが出力されます。
チャートの[front]面(オモテ面)には、どのトレイから出力したチャートなのか区別がつくように
マークが印字されます。詳細は、チャートについてをごらんください。
[印刷モード終了]を押します。
出力されたチャートの[back]面(ウラ面)側にある[1]~[4]の
と、[front]面(オモテ面)の
のズレを測定します。
図は[1]を測定するときの例です。目盛りの間隔は0.5 mmです。
図の黒い
はオモテ面、青い
はウラ面を示しています。
印刷位置のズレは、X方向とY方向を測定します。
0.1 mm単位まで入力できます。
測定した数値は、忘れないようにメモしておいてください。
たとえば、図のように[1]の
が、オモテ面よりX方向のプラス側に2.0 mm、Y方向のマイナス側に1.5 mmズレているときは、[1]はウラ面の青い線をX方向のマイナス側に2.0mm、Y方向のプラス側に1.5mm移動させたいので、Xは[2][0][+/-]の順に押して-2.0、Yは[1][5]の順に押して+1.5を入力して補正します。
各ポイントの[X]または[Y]を押して、測定した数値を画面のテンキーまたは[
]、[
]で入力します。
印刷位置がマイナス側にズレているときは、プラスの値を入力します。プラス側にズレているときは、マイナスの値を入力します。
[+/-]で数値のプラス/マイナスを選択します。
数値をリセットするときは、[クリア]を押します。

[調整開始]を押します。
[閉じる]を押します。
以上で、[チャート調整]は完了です。
微調整を行う場合は、倍率/イメージシフト調整の調整を行ってください。